Ano: 2009
Área Total: 350m²
Localização: Rio de Janeiro

No coração do Rio...

O projeto da sede dos escritórios Glem, na Lagoa, Rio de Janeiro, é definido pela sua situação inusitada, sob uma extremidade triangular de uma arquibancada de concreto para competições de remo.

O interior e seus desafios

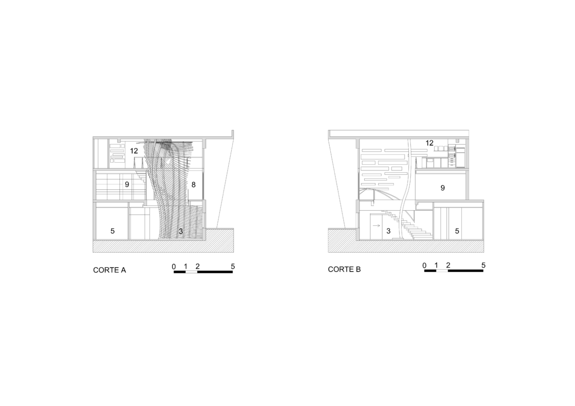
Além do primeiro dos seus três níveis ser semi-enterrado e o plano de cobertura em concreto não permitir aberturas, essas mesmas aberturas ficam extremamente restritas nas duas únicas pequenas fachadas do projeto.

Uma é quase totalmente ocupada pela rampa de acesso à arquibancada, que é pública e portanto ofereceria fácil acesso a uma indesejável entrada ao escritório que, a pedido do cliente tem um refinado sistema de segurança. Por esse motivo essa fachada apresenta longos e estreitos rasgos nas alvenarias, para que apenas a luz e algumas vistas possam entrar no escritório sem convite.

A outra fachada dá para os fundos de um grupo de confusas e precárias construções existentes. Assim se definiu um semi-circulo de vidro translúcido de segurança. Após levar em consideração essas limitações, decidiu-se por integrar todas as partes do programa pelo espaço de circulação vertical definido por escadas curvas em concreto, vigas laminadas de eucalipto e uma trama de bambú.

Um “balaio” vazio que recebe as pessoas que passam pela pequena recepção e amarra o conjunto do projeto. No primeiro nível do escritório, o espaço delimitado pelo “balaio” abriga uma pequena área de espera e reuniões informais, além de conduzir a três salas de reuniões para 4, 8 e 12 pessoas, dois banheiros, sala de operações, aquivo e uma sala de controle multimídia.

O primeiro lance de escadas leva, através da passarela que estampa em vidro laminado translúcido um rebatimento do circulo da parede adjacente, ao segundo nível. Este nível abriga a parte destinada a diretoria. Trata-se de um espaço que através do uso de portas de correr em madeira, pode ficar integrado ou dividido em três ambientes estanques.

Um segundo lance de escadas leva ao terceiro nível, que contando com uma copa, tv, sofás e estantes para livros e revistas é o local de descontração e relaxamento do escritório. Neste nível também se encontram os vestiários masculino e feminino.

Fotógrafo: Leonardo Finotti

Jardim da árvore da vida

Frutos gerados em Jerusalém