Ano: 2021
Área Total: 280m²
Localização: Rio de Janeiro, RJ

Urbano e natural como o Rio de Janeiro

Nós tivemos bastante liberdade criativa no projeto do Triplex Arpoador. O cliente, um jovem francês que estava em busca de um apartamento para investir no Rio, conheceu nosso trabalho e deu carta branca para reformar o triplex de 280 m² que havia comprado.

Seus únicos desejos eram que o apartamento tivesse 4 suítes, uma arquitetura que se destacasse e fosse confortável.

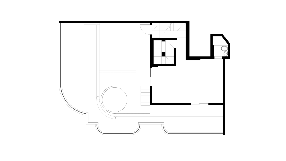
O apartamento tinha cômodos pequenos e uma circulação prejudicada, então tivemos que realizar diversas alterações na planta. Foi um trabalho extenso em que engenharia e arquitetura caminharam juntas. Mexemos em lajes, estruturas, rede hidráulica e elétrica para criar ambientes confortáveis.

Propusemos uma disposição que facilita o acesso aos espaços coletivos da casa. No nível superior está a suíte master, no meio sala e cozinha, e no nível inferior as 3 suítes restantes. Com isso basta subir ou descer apenas um andar para estar na área social.

Repensamos toda a circulação do apartamento e instalamos um elevador interno, o que foi um desafio estrutural. Além disso, implementamos duas escadas, uma em espiral que conecta o pavimento inferior à sala e uma segunda que liga a sala à suíte master.

Inspirados na cidade do Rio de Janeiro, optamos por uma arquitetura orgânica que mescla elementos urbanos e naturais. Utilizamos materiais como madeira, vidro, metal, cimento queimado e pedra natural, que reveste algumas paredes e confere uma estética rústica ao apartamento.

Apostamos também na integração de ambientes, especialmente no segundo andar. Este piso originalmente possuía uma varanda extremamente grande e um interior pequeno, então reduzimos um pouco a área externa para criar um espaço interno maior, integrado e aconchegante.

A cozinha aberta tem uma ilha central, eletrodomésticos embutidos nos painéis ripados de madeira e se conecta com a sala de estar, que por sua vez está ligada à varanda.

Para aumentar a sensação de amplitude instalamos grandes espelhos e escolhemos painéis de vidro para o fechamento da sala. Estes dois elementos também fazem com que a paisagem de Ipanema seja muito mais presente na decoração.

Também há integração na suíte master, que tem uma bela varanda com vista para a praia e uma piscina de vidro. Para trazer aconchego ao cômodo, revestimos piso e paredes com madeira.

A piscina com fundo de vidro traz um efeito estético ao segundo andar. A luz incide sobre a água, criando uma iluminação diferente para a sala. Um jogo muito interessante de luz e movimento.

Para incrementar a estética orgânica criamos uma árvore que começa no primeiro andar e vai até o teto do segundo. Ela possui um pilar metálico envolto por peças de madeira cortadas a laser e dispostas em camadas. É um elemento que confere um toque artístico, tropical e exuberante ao triplex.

O resultado do projeto veio após 1 ano e meio de estudos e obras. Um apartamento charmoso, com ambientes integrados, materiais naturais e conforto para aproveitar a vista carioca.

Fotógrafo: André Rodrigues

O Véu de Maya se Eleva

Em harmonia com a paisagem