Ano: 2019
Área Total: 332,70m²
Localização: Rio de Janeiro, Brasil

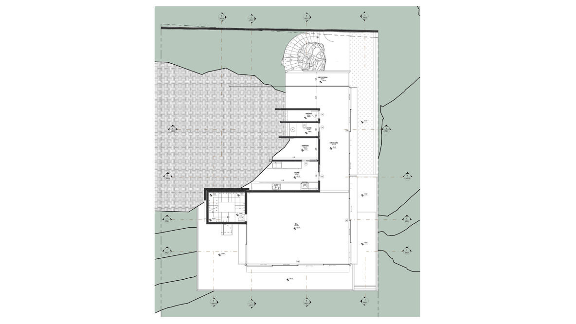
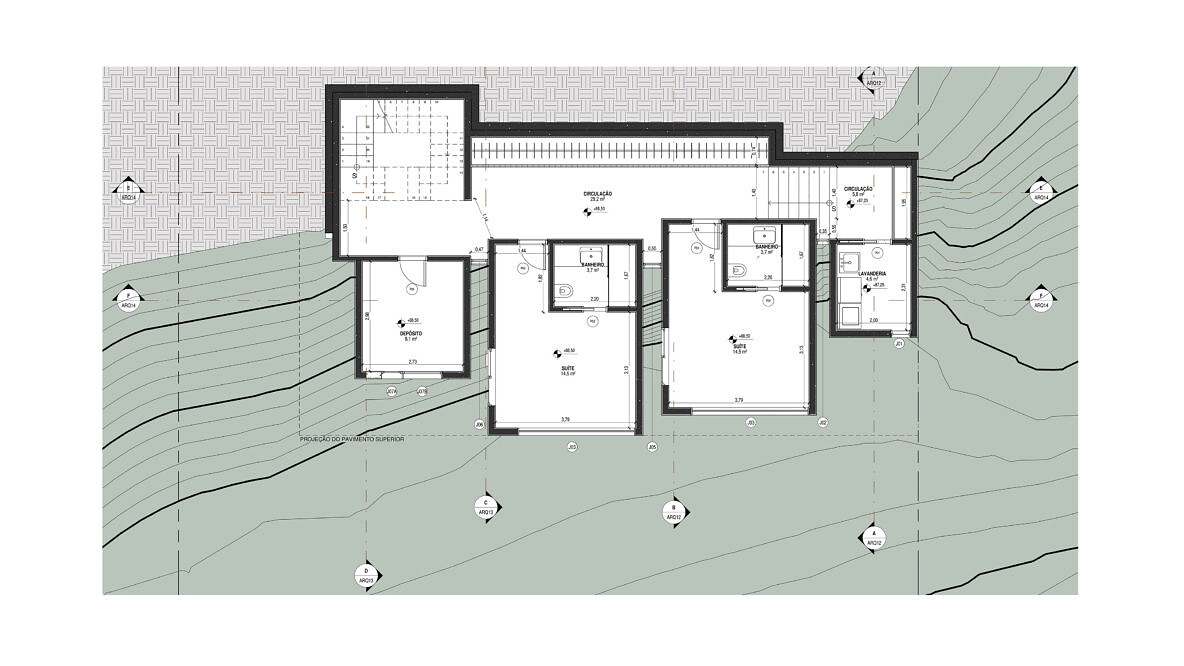
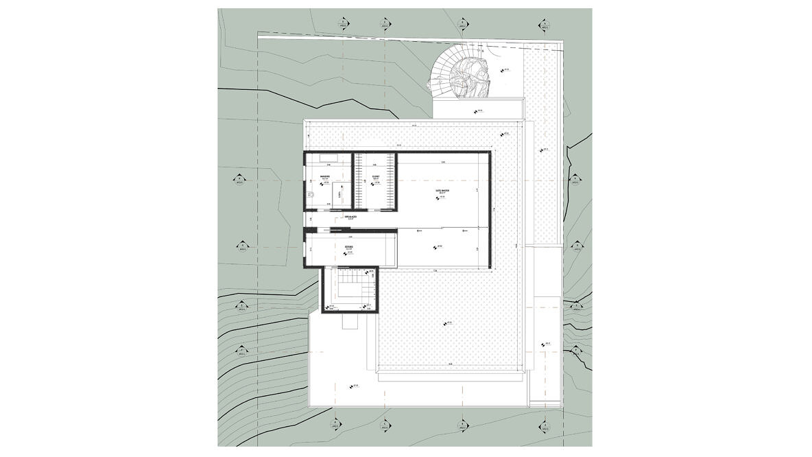
Uma casa na rocha

Essa residência não se desenvolve apenas em torno de um programa; se desenvolve em torno de uma rocha. Desde o primeiro contato com o terreno a rocha de granito se fez absoluta. Foi em torno da sua forma e textura que foi se estruturando o projeto.

Os aspectos rudes foram mantidos, assim como as inúmeras reentrâncias. Todos os ambientes em algum momento são determinados pela solidez da pedra e pela leveza de um voo sobre o mar do Rio de Janeiro. Essa é um exemplo de casa “mandala” mantendo todos os aspectos de reserva e proteção aos moradores e se abrindo paulatinamente para a paisagem.

Resort Amazon

Uma imersão na floresta